Vermögensaufbau mit schöner Wohneinheit im aufstrebenden Wittenberge

Objektbeschreibung

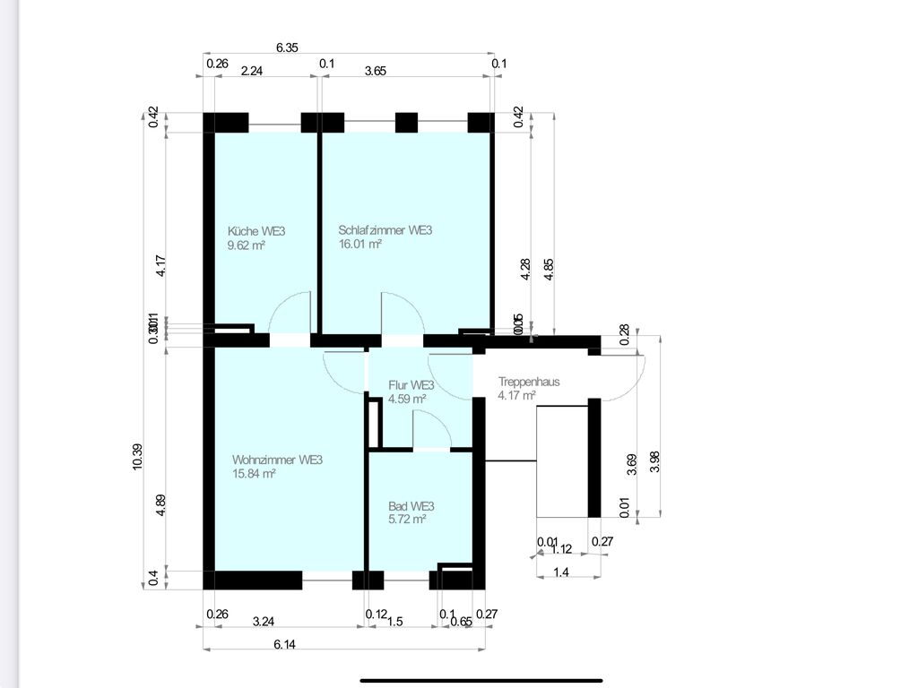
Das 1904 gebaute und 1995 sanierte Mehrfamilienhaus verfügt über insgesamt 6 Wohneinheiten und befindet sich fußläufig vom Altstadtkern Wittenberges entfernt. Bei der hier angebotenen Wohnung handelt es sich um eine schöne 2-Zimmer-Wohnung im 2. OG auf einer Fläche von ca. 52,09 m² für Singles oder Paare. Sie wurde 2015 renoviert. Vom Flur aus gelangen Sie linksseitig in den geräumigen Wohnbereich. Die Küche ist komplett ausgestattet und bietet zudem noch ausreichend Platz für einen Essbereich. Zur rechten Seite des Flurs betreten Sie das praktisch geschnittene Schlafzimmer, durch welches Sie zum gefliesten Tageslicht-Badezimmer mit Wanne gelangen. Der Hof ist für die gesamte Hausgemeinschaft nutzbar.

Ausstattung

Einbauküche Keller Hofbenutzung Gaszentralheizung

Sonstiges

  • Das Team von Black Label Immobilien bietet Ihnen Unterstützung in allen Bereichen rund um den Kauf einer Immobilie. Unser internationales Team spricht fließend Englisch, Deutsch, Französisch und Mandarin, zudem arbeiten wir mit einem Team aus mehrsprachigen Anwälten, Notaren und Finanzierungsberatern zusammen. Um Ihren persönlichen Ansprüchen gerecht werden zu können, bieten wir Ihnen eine große Auswahl an verschiedenen Immobilien. Senden Sie uns einfach ihre Suchkriterien inklusive:
  • Art der gesuchten Immobilie
  • Ihr Budget
  • Bevorzugter Standort
  • Suchen Sie eine Immobilie als Investment oder zum Eigenbedarf? Für Unterstützung bei der Finanzierung Ihrer Immobilie vermitteln wir Ihnen gern einen Finanzierungspartner. Sind Sie an einer Vermietung Ihrer neuen Immobilie interessiert? Hierfür bietet Black Label ein Verwaltungs-Paket sowohl für unmöblierte als auch möblierte Vermietungen, sowie einen kompletten Design- und Möblierungsservice, angepasst an ihre persönlichen Vorstellungen. Kontaktieren Sie uns, oder besuchen Sie uns in unserem Büro, um mehr Informationen zu erhalten. Alle Angaben stammen vom Verkäufer. Die Firma BLP Investments GmbH übernimmt daher keine Haftung für die Richtigkeit der Angaben. Insbesondere die Angaben zur Wohnfläche, zur Nutzfläche und zur Aufteilung der Wohn-/Nutzfläche sind von uns nicht durch ein eigenes Aufmaß oder eine eigene Wohnflächenberechnung kontrolliert worden. Die Angaben zum Baujahr sind nicht durch eine Einsicht in die Bauakte überprüft worden.

Lage

Leben in einer beschaulichen und historischen Stadt direkt an der Elbe! Auf halber Strecke zwischen Berlin und Hamburg befindet sich Wittenberge, ganz im Nordwesten Brandenburgs, an der Elbe. Umgeben von der beindruckend schönen Landschaft der Elbtalaue wandelte sich die bereits im Mittelalter erwähnte Stadt zu einem wichtigen Wohn- und Wirtschaftsstandort Brandenburgs. Das Mehrfamilienhaus liegt nur 15 Minuten zu Fuß vom Hauptbahnhof Wittenberges entfernt. Von hier aus gelangt man mit dem ICE bequem in 45 Minuten nach Berlin und in einer Stunde nach Hamburg. In unmittelbarer Nähe zu Ihrem neuen Zuhause befinden sich Geschäfte des täglichen Bedarfs, Schulen, Kindergärten, Ärzte und Apotheken. Ebenfalls nur einen kurzen Spaziergang entfernt liegt der Stadtpark, der zum Erholen und Verweilen einlädt.
Gartenstraße 32, 19322 Wittenberge

Kontaktieren Sie uns (Kopie)

Bitte rechnen Sie 5 plus 7.

Ihre Daten werden nur zur Beantwortung Ihrer Anfrage genutzt. Wir geben Ihre Daten nicht weiter. Mehr Informationen zum Umgang mit Nutzer-Daten finden Sie in unserer Datenschutzerklärung.