Ideales Familienhaus in Potsdam

Objektbeschreibung

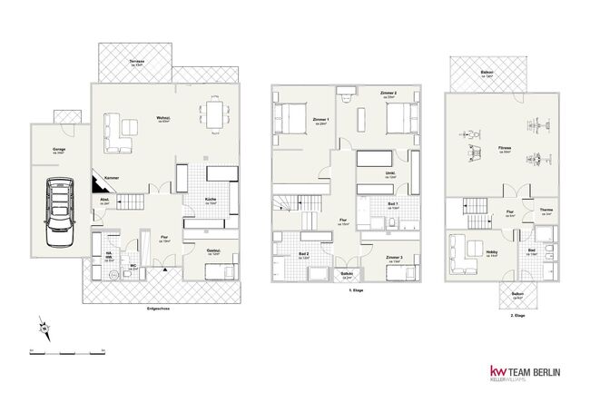
Zum Verkauf steht ein neuwertiges schönes Einfamilienhaus in Potsdam OT Groß Glienicke mit insgesamt 316 m² Wohnfläche und einem Grundstück von 460 m². Das Haus wurde im Jahr 2018 fertiggestellt und befindet sich in einem sehr guten Zustand. Im Erdgeschoss befindet sich in Südlage der großzügige Wohn- und Essbereich mit Kamin sowie einer offenen Küche. Durch bodentiefe Fenster gelangt viel Tageslicht in den Raum und schafft eine helle und freundliche Atmosphäre. Von hier aus hat man direkten Zugang zur Terrasse und dem Garten mit Pool. Die hochwertige Einbauküche ist im Kaufpreis inklusive. Des Weiteren gibt es ein separates Arbeitszimmer/Gästezimmer sowie ein Gäste-WC. Die daneben liegende Garage mit extra Handwerksbereich ist bequem vom Flur aus zu erreichen. Im Obergeschoss befinden sich das Elternschlafzimmer mit begehbarem Kleiderschrank und eigenem Badezimmer, zwei weitere Schlafzimmer (eins mit begehbarem Kleiderschrank) sowie ein weiteres Badezimmer. Die Badezimmer sind modern ausgestattet. Im Dachgeschoss befindet sich ein ca. 60qm großes Zimmer mit einer Deckenhöhe von 4,5m, das als Schlafzimmer/Büro oder Atelier genutzt werden kann. Der von hier aus erreichbare ca. 10qm große Balkon bietet einen atemberaubenden Blick über den Villenpark Potsdam. Auch hier gibt es ein weiteres Schlafzimmer sowie ein Badezimmer mit Dusche. Die Heizungsanlage mit darüberliegendem Stauraum befindet sich ebenfalls auf dieser Etage. Das Haus verfügt über eine moderne Gasheizung, eine Zentralstaubsaugeranlage und ist mit einer Fußbodenheizung ausgestattet. Die Böden sind mit hochwertigen Fliesen, Teppichböden und Parkett verlegt. Im Garten gibt es eine Terrasse, auf der man gemütliche Grillabende verbringen kann. Der Garten ist pflegeleicht angelegt und bietet genügend Platz zum Spielen und Entspannen und baden. Neben dem Poolbereich befindet sich eine Überdachung für Kaminholz oder Grillplatz. Das Einfamilienhaus liegt am Wendehammer ohne Durchgangsverkehr in einer ruhigen Wohngegend von Potsdam und bietet eine gute Anbindung an öffentliche Verkehrsmittel. Einkaufsmöglichkeiten, Schulen und Kindergärten befinden sich in der Nähe. Insgesamt bietet dieses Haus viel Platz und Komfort für eine Familie oder auch für Paare, die gerne großzügig wohnen möchten. Überzeugen Sie sich selbst bei einer Besichtigung von diesem traumhaften Einfamilienhaus.

Ausstattung

> 2 Stelllätze + 1 Garage > Gas-Brennwerttherme, Solarkollektoren, Holzkamin > Bezugsfrei nach Eigentumsumschreibung/Vereinbarung

Sonstiges

Provisionspflichtig für den Käufer. Die Provision beträgt 3,57% inkl. 19 % USt. und ist verdient und fällig mit Kaufvertragsunterzeichnung. Es wurde ein Maklervertrag mit dem Verkäufer in gleicher Höhe abgeschlossen. Alle gemachten Angaben zu Objekten sind ohne Gewähr und basieren ausschließlich auf Informationen, die uns von unserem Auftraggeber oder von Dritten übermittelt wurden. Wir übernehmen keine Gewähr für die Richtigkeit, die Vollständigkeit, sowie die Aktualität dieser Angaben, insbesondere die Angaben zur Wohnfläche, zur Nutzfläche und zur Aufteilung der Wohn-/Nutzfläche sind von uns nicht durch ein eigenes Aufmaß oder eine eigene Wohnflächenberechnung kontrolliert und die Angaben zum Baujahr sind nicht durch eine Einsicht in die Bauakte überprüft worden. Vermögensschaden-Haftpflichtversicherung abgeschlossen bei der Allianz.

Lage

Das Objekt finden Sie in einer schönen und ruhigen Gegend in Potsdam Groß Glienicke. In unmittelbarer Umgebung verkehren diverse Buslinien u.a. 604, 639 und 638, 135.
Von-Oppen-Weg 7a, 14476 Potsdam

Kontaktieren Sie uns (Kopie)

Bitte addieren Sie 1 und 1.

Ihre Daten werden nur zur Beantwortung Ihrer Anfrage genutzt. Wir geben Ihre Daten nicht weiter. Mehr Informationen zum Umgang mit Nutzer-Daten finden Sie in unserer Datenschutzerklärung.