Modernes Leben direkt am Werlsee in Grünheide

Objektbeschreibung

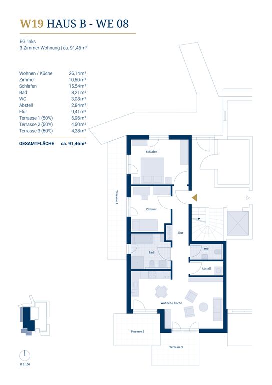
Die 3-Zimmer Erdgeschosswohnung umfasst ca. 91,46 m² und bietet genügend Platz für eine kleine Familie oder Paare. Hier zu leben verspricht jeden Tag einen atemberaubenden Blick zum Wasser, soweit das Auge reicht und ist mit der naturnahen Umgebung eine perfekte Erholungsoase vom stressigen Alltag. Das Apartment verfügt über 3 große Terrassen, wovon eine vom Schlafbereich über das Kinderzimmer bis zum Badezimmer verläuft. Es ist mit modernsten Elementen wie zum Beispiel ein Handtuchheizkörper im Badezimmer oder Smart Home Technik ausgestattet. Der offene Wohn- und Essbereich ist durch die großen Fensterfronten angenehm hell und besticht jeder Tag mit einem wunderschönen Blick auf den Werlsee und seine bezaubernde Liebesinsel. Zudem verfügt das Apartment über ein Badezimmer mit Wanne und ein Gäste-WC. Auch ein Abstellraum mit genügend Stauraum ist vorhanden.

Ausstattung

• Carport mit angrenzendem Schuppen • Zusammenlegung der Einheiten möglich • Bootsliegeplätze • Smart Home Technik auf BUS-Basis • Fußbodenheizung • Handtuchheizkörper • Luftwärmepumpe • Dreifach-Isolierverglasung • KFW 55 Standard

Sonstiges

  • Das Team von Black Label Immobilien bietet Ihnen Unterstützung in allen Bereichen rund um den Kauf einer Immobilie. Unser internationales Team spricht fließend Englisch, Deutsch, Französisch und Mandarin, zudem arbeiten wir mit einem Team aus mehrsprachigen Anwälten, Notaren und Finanzierungsberatern zusammen. Um Ihren persönlichen Ansprüchen gerecht werden zu können, bieten wir Ihnen eine große Auswahl an verschiedenen Immobilien. Senden Sie uns einfach ihre Suchkriterien inklusive:
  • Art der gesuchten Immobilie
  • Ihr Budget
  • Bevorzugter Standort
  • Suchen Sie eine Immobilie als Investment oder zum Eigenbedarf? Für Unterstützung bei der Finanzierung Ihrer Immobilie vermitteln wir Ihnen gern einen Finanzierungspartner. Sind Sie an einer Vermietung Ihrer neuen Immobilie interessiert? Hierfür bietet Black Label ein Verwaltungs-Paket sowohl für unmöblierte als auch möblierte Vermietungen, sowie einen kompletten Design- und Möblierungsservice, angepasst an ihre persönlichen Vorstellungen. Kontaktieren Sie uns, oder besuchen Sie uns in unserem Büro, um mehr Informationen zu erhalten. Die Angaben in diesem Exposé stammen vom Verkäufer. Wir haben diese Angaben nicht im Einzelnen überprüft. Insbesondere ist die Baugenehmigung nicht eingesehen worden und eine Kontrolle zur Angabe der Wohnfläche und zum Baujahr des Hauses hat nicht stattgefunden.

Lage

Wie das Wort Grünheide bereits verrät, leben Sie hier umgeben von viel Grün, Wäldern und purer Natur. Suchen auch Sie eine perfekte Kombination aus Stadttrubel und weitläufigen Landschaften in vollkommener Ruhe? Dann sind Sie hier genau richtig. Trotz des unglaublichen Kontrastes ist das Leben in Grünheide alles andere als langweilig. Durch die nahe liegenden Seen, Badestrände und durch die zahlreichen Anlaufstellen für Freizeitaktivitäten ist Grünheide ein perfektes Wohngebiet für die ganze Familie. Trotz des ländlichen Flairs ist die Gegend alles andere als abgeschieden: Die nächste Autobahn-Zufahrt (A10) liegt lediglich 2 km entfernt und die öffentliche Verkehrsanbindung ist durch die deutsche Bahn, welche in einem halbstündigen Takt zum Berlin Alexanderplatz fährt, gegeben. Die Fahrtstrecke zur Stadt lässt sich mit dem PKW genauso bequeme wie mit dem öffentlichen Verkehrsmittel zurücklegen. Auch Einkaufsmöglichkeiten für den täglichen Bedarf, Restaurants, Schulen und Ärzte sind in der Umgebung zu erreichen und bieten Ihnen alles was nötig ist.
Werlseestraße 19, 15537 Grünheide (Mark)

Kontaktieren Sie uns (Kopie)

Bitte rechnen Sie 3 plus 6.

Ihre Daten werden nur zur Beantwortung Ihrer Anfrage genutzt. Wir geben Ihre Daten nicht weiter. Mehr Informationen zum Umgang mit Nutzer-Daten finden Sie in unserer Datenschutzerklärung.