Maisonette Wohnung in Dahlem - Erstbezug in historischem Altbau mit Balkon

Objektbeschreibung

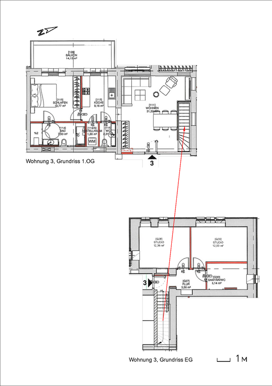
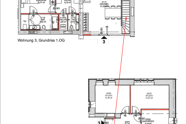
Willkommen in Ihrem neuen Zuhause! Diese stilvolle, frisch sanierte 4-Zimmer-Wohnung befindet sich im Stadtteil Dahlem und bietet eine großzügige Wohnfläche von 107,15 m². Das historische Gebäude in Dahlem wurde zwischen 1908 und 1909 gemäß den Entwürfen des Berliner Architekten Carl Kujath errichtet und befindet sich derzeit in einer umfassenden Sanierungsphase. Während die letzten Feinheiten bis zur Fertigstellung im Oktober 2024 vollendet werden, können Sie sich schon jetzt auf den baldigen Einzug in Ihr neues Zuhause freuen. Diese exklusive Maisonettewohnung besticht durch ihre lichtdurchfluteten Räume, die sich über zwei Etagen erstrecken, und bietet durch ihre moderne Architektur und hochwertige Ausstattung ein einzigartiges Wohngefühl. Besonders erwähnenswert ist der 14 m² Balkon, der zum Entspannen und Genießen einlädt. Die Wohnung beeindruckt mit einer hochwertigen Ausstattung, die erstklassige Materialien wie Geberit, Zehnder, Dornbracht, Villeroy & Boch, Joka Calgary Parkett Eiche und Hörmann Türen umfasst. Ein Schloss- und Gegensprechanlage-Sicherheitssystem mit Videofunktion an der Wohnungstür sorgt für Ihre Sicherheit. Moderne Annehmlichkeiten wie Kühldecken, Fußbodenheizung und effiziente Luftwärmepumpen schaffen ein angenehmes Raumklima und lassen keine Wünsche offen. Ein besonderes Highlight dieser Immobilie ist die durchdachte Barrierefreiheit. Alle öffentlichen Räume und Wohnungseingänge sind barrierefrei gestaltet. Das Hauptgeschoss dieser Wohneinheit verfügt über ein Schlafzimmer mit einem barrierefreien Bad, und eine Hebebühne an der Eingangstreppe ermöglicht den Zugang mit Rollstühlen und Kinderwagen. Der großzügige Grundriss und die liebevoll restaurierten Details der Wohnung sind eine Hommage an die reiche Geschichte des Gebäudes. Diese Wohnung vereint stilvolles Design mit modernem Komfort und lädt Sie ein, Ihr neues, hochwertiges Zuhause zu entdecken. Ihre persönlichen Wünsche und Vorstellungen werden in enger Zusammenarbeit mit den Bauherren umgesetzt, sodass Ihr neues Zuhause genau Ihren Vorstellungen entspricht. Diese Immobilie bietet nicht nur höchsten Wohnkomfort und eine herausragende Ausstattung, sondern auch durchdachte Barrierefreiheit und moderne Sicherheitsstandards. Überzeugen Sie sich selbst und entdecken Sie Ihr neues Zuhause, in Dahlem. Für weitere Informationen oder zur Vereinbarung eines Besichtigungstermins stehen wir Ihnen gerne zur Verfügung. Ihr neues Zuhause erwartet Sie!

Ausstattung

Lassen Sie sich von den Vorzügen dieser Immobilie überzeugen! Hier sind die herausragenden Merkmale der Immobilie im Überblick: • Denkmalgerechte, großflächige doppeltverglaste Holzfenster aus einer renommierten Berliner Manufaktur. • Sehr hochwertige Innenausstattung für ein Ambiente der Extraklasse. • Barrierefreie Wohnungen: alle öffentlichen Räume sowie alle Wohnungseingänge sind barrierefrei; die Hauptgeschosse aller Wohneinheiten verfügen über mindestens ein Schlafzimmer mit barrierefreiem Bad; an der Eingangstreppe des Gebäudes ist eine spezielle Hebebühne für den Zugang mit Rollstühlen und Kinderwagen entsprechend den Anforderungen des Denkmalschutzes installiert; Ausführung gemäß Verordnung über bauliche Anforderungen an barrierefreies Wohnen (BWoV BE) • Verwendung renommierter Markenprodukte wie Geberit, Zehnder, Dornbracht, Villeroy & Boch, Joka Calgary Parkett Eiche und Hörmann Türen. • Schloss/Gegensprechanlage Sicherheitssystem mit Türsprechanlage und Videofunktion werden an der Wohnungseingangstür, installiert. • Optional sind 10 Tiefgaragenstellplätze gegen einen Aufpreis von 65.000 €, verfügbar. Einige davon mit installierten Elektroladestationen. Diese Immobilie bietet nicht nur höchsten Wohnkomfort und herausragende Ausstattung, sondern auch durchdachte Barrierefreiheit und moderne Sicherheitsstandards.

Sonstiges

  • Das Team von Black Label Immobilien bietet Ihnen Unterstützung in allen Bereichen rund um den Kauf einer Immobilie. Unser internationales Team spricht fließend Englisch, Deutsch, Französisch und Mandarin, zudem arbeiten wir mit einem Team aus mehrsprachigen Anwälten, Notaren und Finanzierungsberatern zusammen. Um Ihren persönlichen Ansprüchen gerecht werden zu können, bieten wir Ihnen eine große Auswahl an verschiedenen Immobilien. Senden Sie uns einfach ihre Suchkriterien inklusive:
  • Art der gesuchten Immobilie
  • Ihr Budget
  • Bevorzugter Standort
  • Suchen Sie eine Immobilie als Investment oder zum Eigenbedarf? Für Unterstützung bei der Finanzierung Ihrer Immobilie vermitteln wir Ihnen gern einen Finanzierungspartner. Sind Sie an einer Vermietung Ihrer neuen Immobilie interessiert? Hierfür bietet Black Label ein Verwaltungs-Paket sowohl für unmöblierte als auch möblierte Vermietungen, sowie einen kompletten Design- und Möblierungsservice, angepasst an ihre persönlichen Vorstellungen. Kontaktieren Sie uns, oder besuchen Sie uns in unserem Büro, um mehr Informationen zu erhalten. Alle Angaben stammen vom Verkäufer. Die Firma BLP Investments GmbH übernimmt daher keine Haftung für die Richtigkeit der Angaben. Insbesondere die Angaben zur Wohnfläche, zur Nutzfläche und zur Aufteilung der Wohn-/Nutzfläche sind von uns nicht durch ein eigenes Aufmaß oder eine eigene Wohnflächenberechnung kontrolliert worden. Die Angaben zum Baujahr sind nicht durch eine Einsicht in die Bauakte überprüft worden.

Lage

Der im Südwesten Berlins gelegene Ortsteil Dahlem zählt zu den begehrtesten Wohnlagen der Stadt und begeistert durch prächtige Gründerzeitvillen und weitläufige Parkanlagen. Die Nähe zur West-City und die direkte Lage am Grunewald sorgen für eine außergewöhnlich hohe Wohnqualität. Dahlem ist ein bedeutender Standort für Bildung und Kultur und beherbergt einige der angesehensten Institutionen Berlins, allen voran die renommierte Freie Universität. Die Domäne Dahlem, das Jagdschloss Grunewald sowie das Alliierten- und Brücke-Museum bieten ein vielfältiges kulturelles Angebot, das keine Wünsche offen lässt. Kulinarisch hat Dahlem ebenfalls einiges zu bieten: von exquisiten Gourmet-Restaurants bis hin zu gemütlichen Biergärten ist für jeden Geschmack etwas dabei. Die medizinische Versorgung ist durch zahlreiche Ärztehäuser und Praxen erstklassig gesichert. Der Ortsteil ist zudem hervorragend an das öffentliche Verkehrssystem angeschlossen. In unmittelbarer Nähe befinden sich die Bushaltestellen der Linie X83, die S-Bahn-Station Botanischer Garten und die U-Bahn-Station Dahlem-Dorf, die eine schnelle und bequeme Erreichbarkeit in alle Stadtteile gewährleisten.
Altensteinstraße 51, 14195 Berlin

Kontaktieren Sie uns (Kopie)

Was ist die Summe aus 9 und 1?

Ihre Daten werden nur zur Beantwortung Ihrer Anfrage genutzt. Wir geben Ihre Daten nicht weiter. Mehr Informationen zum Umgang mit Nutzer-Daten finden Sie in unserer Datenschutzerklärung.