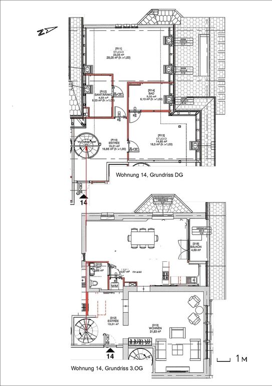
Fertiggestellte Wohnungen in Dahlem - Erstbezug, Altbau mit Aufzug

Sonstiges

  • Das Team von Black Label Immobilien bietet Ihnen Unterstützung in allen Bereichen rund um den Kauf einer Immobilie. Unser internationales Team spricht fließend Englisch, Deutsch, Französisch und Mandarin, zudem arbeiten wir mit einem Team aus mehrsprachigen Anwälten, Notaren und Finanzierungsberatern zusammen. Um Ihren persönlichen Ansprüchen gerecht werden zu können, bieten wir Ihnen eine große Auswahl an verschiedenen Immobilien. Senden Sie uns einfach ihre Suchkriterien inklusive:
  • Art der gesuchten Immobilie
  • Ihr Budget
  • Bevorzugter Standort
  • Suchen Sie eine Immobilie als Investment oder zum Eigenbedarf? Für Unterstützung bei der Finanzierung Ihrer Immobilie vermitteln wir Ihnen gern einen Finanzierungspartner. Sind Sie an einer Vermietung Ihrer neuen Immobilie interessiert? Hierfür bietet Black Label ein Verwaltungs-Paket sowohl für unmöblierte als auch möblierte Vermietungen, sowie einen kompletten Design- und Möblierungsservice, angepasst an ihre persönlichen Vorstellungen. Kontaktieren Sie uns, oder besuchen Sie uns in unserem Büro, um mehr Informationen zu erhalten. Alle Angaben stammen vom Verkäufer. Die Firma BLP Investments GmbH übernimmt daher keine Haftung für die Richtigkeit der Angaben. Insbesondere die Angaben zur Wohnfläche, zur Nutzfläche und zur Aufteilung der Wohn-/Nutzfläche sind von uns nicht durch ein eigenes Aufmaß oder eine eigene Wohnflächenberechnung kontrolliert worden. Die Angaben zum Baujahr sind nicht durch eine Einsicht in die Bauakte überprüft worden.
Altensteinstraße 51, 14195 Berlin

Kontaktieren Sie uns (Kopie)

Bitte addieren Sie 4 und 5.

Ihre Daten werden nur zur Beantwortung Ihrer Anfrage genutzt. Wir geben Ihre Daten nicht weiter. Mehr Informationen zum Umgang mit Nutzer-Daten finden Sie in unserer Datenschutzerklärung.