Denkmal Altbauwohnungen in Dahlem - Erstbezug, Altbau mit Aufzug

Objektbeschreibung

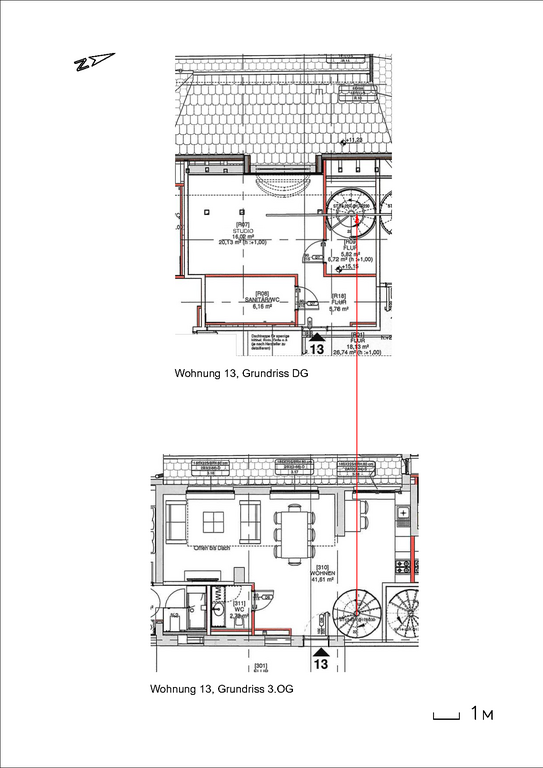
Das historische Gebäude in Dahlem ist 1908/09 nach Plänen des Berliner Architekten Carl Kujath erbaut worden und wird aktuell einer Generalsanierung unterzogen. Fünfzehn herrschaftliche Wohnungen mit 2 bis 4 Zimmern stehen zum Verkauf. Das Gebäude verfügt über Erdgeschoss/Souterrain, 3 Regelgeschosse sowie Dachgeschoss und ist barrierefrei zugänglich. Ein Fahrstuhl verbindet die Etagen. Die hochwertige Sanierung und die historische Architektur bieten eine erstklassige Wohnqualität durch hohe Räume, Fußbodenheizung und Kühldecken, filigrane Denkmal-Holzfenster mit Doppelverglasung und optimale Lichtverhältnisse. Das Gebäude erfüllt höchste Energiestandards mit dem Zertifikat der Energieklasse A. Die Heizung wird von einer innovativen Luftwärmepumpe betrieben, das nicht nur umweltfreundlich ist, sondern auch die Energiekosten entsprechend senkt. Ein weiteres Highlight ist der schwellenfreie Zugang zu den Wohnungen, der für maximale Barrierefreiheit sorgt. Darüber hinaus stehen Tiefgaragenstellplätze zwischen dem Grundstück Reichensteiner Weg 24 und dem Grundstück Altensteinstraße 51 zur Verfügung, die Ihren Fahrzeugen einen sicheren und bequemen Platz bieten. Die Fertigstellung ist für den Herbst 2024 geplant. Stellplätze in der Tiefgarage: Preis € 65.000 Bezahlung: 10% Anzahlung 90% bei Schüsselübergabe Ein Objekt der Denkmal in Dahlem Otto-Hahn-Platz GmbH (DİD) DiD ist eine Immobilienprojektgesellschaft, die 2018 mehrheitlich von der TEKFEN HOLDİNG übernommen wurde. Die TEKFEN HOLDING ist ein international tätiger, prominenter Mischkonzern, der seit mehr als 25 Jahren über seine Tochtergesellschaft HMB Hallesche Mitteldeutsche Bau AG, die Mehrheitsaktionärin von DiD ist, in Deutschland präsent ist.

Ausstattung

• Barrierefreie Wohnungen: alle öffentlichen Räume sowie alle Wohnungseingänge sind barrierefrei; die Hauptgeschosse aller Wohneinheiten verfügen über mindestens ein Schlafzimmer mit barrierefreiem Bad; an der Eingangstreppe des Gebäudes ist eine spezielle Hebebühne für den Zugang mit Rollstühlen und Kinderwagen entsprechend den Anforderungen des Denkmalschutzes installiert; Ausführung gemäß Verordnung über bauliche Anforderungen an barrierefreies Wohnen (BWoV BE) • Verwendete Markenprodukte: Geberit, Zehnder, Dornbracht, Villeroy & Boch, Joka Calgary Parkett Eiche, Hörmann Türen • Sicherheitssystem Schloss/Gegensprechanlage - jede Einheit erhält eine Türsprechanlage mit Videofunktion an der Wohnungseingangstür • 10 Tiefgaragenstellplätze gegen einen Aufpreis von 65.000 €, auf einigen Parkplätzen sind Elektroladestationen installiert

Sonstiges

  • Das Team von Black Label Immobilien bietet Ihnen Unterstützung in allen Bereichen rund um den Kauf einer Immobilie. Unser internationales Team spricht fließend Englisch, Deutsch, Französisch und Mandarin, zudem arbeiten wir mit einem Team aus mehrsprachigen Anwälten, Notaren und Finanzierungsberatern zusammen. Um Ihren persönlichen Ansprüchen gerecht werden zu können, bieten wir Ihnen eine große Auswahl an verschiedenen Immobilien. Senden Sie uns einfach ihre Suchkriterien inklusive:
  • Art der gesuchten Immobilie
  • Ihr Budget
  • Bevorzugter Standort
  • Suchen Sie eine Immobilie als Investment oder zum Eigenbedarf? Für Unterstützung bei der Finanzierung Ihrer Immobilie vermitteln wir Ihnen gern einen Finanzierungspartner. Sind Sie an einer Vermietung Ihrer neuen Immobilie interessiert? Hierfür bietet Black Label ein Verwaltungs-Paket sowohl für unmöblierte als auch möblierte Vermietungen, sowie einen kompletten Design- und Möblierungsservice, angepasst an ihre persönlichen Vorstellungen. Kontaktieren Sie uns, oder besuchen Sie uns in unserem Büro, um mehr Informationen zu erhalten. Alle Angaben stammen vom Verkäufer. Die Firma BLP Investments GmbH übernimmt daher keine Haftung für die Richtigkeit der Angaben. Insbesondere die Angaben zur Wohnfläche, zur Nutzfläche und zur Aufteilung der Wohn-/Nutzfläche sind von uns nicht durch ein eigenes Aufmaß oder eine eigene Wohnflächenberechnung kontrolliert worden. Die Angaben zum Baujahr sind nicht durch eine Einsicht in die Bauakte überprüft worden.

Lage

Der im Südwesten Berlins liegenden Ortsteil Dahlem ist durch die prächtigen Gründerzeitvillen und großzügigen Parkanlagen besonders beliebt. Nahe an der West-City gelegen und direkt am Grunewald bietet Dahlem eine hohe Wohnqualität. Als bedeutender Standort für Universitäten und Museen beherbergt Dahlem einige der angesehensten Bildungs- und Kultureinrichtungen Berlins, dazu zählt insbesondere die Freie Universität. Darüber hinaus bieten die Domäne Dahlem, das Jagdschloss Grunewald sowie das Alliierten- und Brücke-Museum vielfältige kulturelle Möglichkeiten. Von exquisiten Gourmet-Adressen bis hin zu gemütlichen Biergärten reichen die Auswahl an Restaurants. Eine Vielzahl an Ärztehäusern und Praxen gewährleisten eine erstklassige medizinische Versorgung. Ebenso ist der Ortsteil hervorragend an das öffentliche Verkehrssystem angeschlossen. In unmittelbarer Nähe liegen die Bushaltestellen der Linie X 83, S-Bahn Botanischer Garten und die U-Bahn Dahlem Dorf.
Altensteinstraße 51, 14195 Berlin

Kontaktieren Sie uns (Kopie)

Was ist die Summe aus 7 und 8?

Ihre Daten werden nur zur Beantwortung Ihrer Anfrage genutzt. Wir geben Ihre Daten nicht weiter. Mehr Informationen zum Umgang mit Nutzer-Daten finden Sie in unserer Datenschutzerklärung.