Penthouse-Paradies: 5 Zimmer, großzügige 82m² Terrasse - Direkt am idyllischen Grunewald

Objektbeschreibung

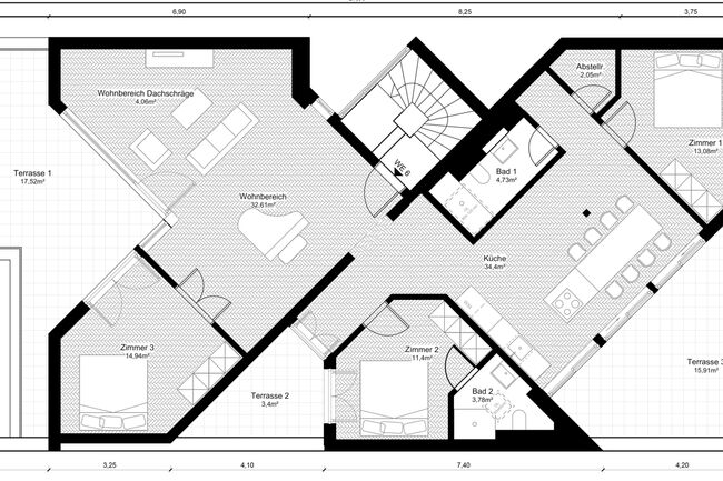
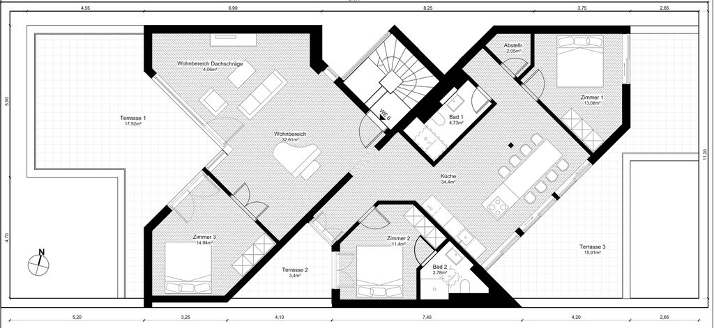
Die hier angebotene Dachgeschosswohnung befindet sich komfortabel im 2. OG und wird mit einer tollen Raumaufteilung, außergewöhnlichen Terrassenflächen und hohem Wohnkomfort begeistern. Zu den Highlights dieser Wohnung zählen u.a.: • Neue Dachdämmung • Echtholz-Parkettboden im Landhausstil mit Fußbodenheizung • Hochwertige Sanitärausstattung • Terrassenbelag aus Bangkirai, WPC oder Lärche • Neue Fenster mit 3-facher-Isolierverglasung • Spektakuläre Terrassen mit ca. 74m² Nutzfläche und herrlichem Blick ins Grüne

Ausstattung

Zu den hochwertigen Sanierungsmaßnahmen am Gemeinschaftseigentum zählen u.a.: • Installation einer hocheffizienten Wärmepumpe-Gas-Hybridheizung • Strangsanierung • Neue Hauselektrik • Fassadenrenovierung • Neugestaltung der Außenanlagen durch einen Landschaftsarchitekten • Stellplätze mit E-Ladestationen (nach Verfügbarkeit, je 40.000€) • Avisierte Fertigstellung des gesamten Projektes ist Q3 2023

Sonstiges

  • Das Team von Black Label Immobilien bietet Ihnen Unterstützung in allen Bereichen rund um den Kauf einer Immobilie. Unser internationales Team spricht fließend Englisch, Deutsch, Französisch und Mandarin, zudem arbeiten wir mit einem Team aus mehrsprachigen Anwälten, Notaren und Finanzierungsberatern zusammen. Um Ihren persönlichen Ansprüchen gerecht werden zu können, bieten wir Ihnen eine große Auswahl an verschiedenen Immobilien. Senden Sie uns einfach ihre Suchkriterien inklusive:
  • Art der gesuchten Immobilie
  • Ihr Budget
  • Bevorzugter Standort
  • Suchen Sie eine Immobilie als Investment oder zum Eigenbedarf? Für Unterstützung bei der Finanzierung Ihrer Immobilie vermitteln wir Ihnen gern einen Finanzierungspartner. Sind Sie an einer Vermietung Ihrer neuen Immobilie interessiert? Hierfür bietet Black Label ein Verwaltungs-Paket sowohl für unmöblierte als auch möblierte Vermietungen, sowie einen kompletten Design- und Möblierungsservice, angepasst an ihre persönlichen Vorstellungen. Kontaktieren Sie uns, oder besuchen Sie uns in unserem Büro, um mehr Informationen zu erhalten. Alle Angaben stammen vom Verkäufer. Die Firma BLP Investments GmbH übernimmt daher keine Haftung für die Richtigkeit der Angaben. Insbesondere die Angaben zur Wohnfläche, zur Nutzfläche und zur Aufteilung der Wohn-/Nutzfläche sind von uns nicht durch ein eigenes Aufmaß oder eine eigene Wohnflächenberechnung kontrolliert worden. Die Angaben zum Baujahr sind nicht durch eine Einsicht in die Bauakte überprüft worden.

Lage

In herrlich idyllischer Wohnlage präsentiert sich die hier angebotene Architektenvilla direkt am nördlichen Rand des bezaubernden Grunewald. Das über 3000 Hektar große Wald- und Forstgebiet beeindruckt mit vielfältigen Erholungs- und Freizeitmöglichkeiten sowie kulturelle Highlights für echte Abenteurer: So befinden sich der Kletterturm, die Aussichtsplattform und Kunstgalerie „Teufelsberg“ oder auch der Drachenberg in fußläufiger Distanz. Schulen, Kitas und Geschäfte des täglichen Bedarfs sind ebenfalls in unmittelbarer Umgebung. Der Teufelssee oder die westlich des Grunewalds verlaufende Havel lädt zu wunderschönen Spaziergängen und Baden ein. Das geschichtsträchtige Olympiastadium befindet sich indes nördlich der Rauschener Allee. Die Anbindung an das Öffentliche Verkehrsnetz ist ideal: In wenigen Geh-Minuten erreichen Sie die die S-Bahn Station Heerstraße und Olympiastadion. Zur Autobahn sind es nur wenige Fahrminuten.
Rauschener Allee 4, 14055 Berlin

Kontaktieren Sie uns (Kopie)

Bitte addieren Sie 1 und 7.

Ihre Daten werden nur zur Beantwortung Ihrer Anfrage genutzt. Wir geben Ihre Daten nicht weiter. Mehr Informationen zum Umgang mit Nutzer-Daten finden Sie in unserer Datenschutzerklärung.