Repräsentative Altbauwohnung: 4-Zimmer im begehrten Berlin-Westend

Objektbeschreibung

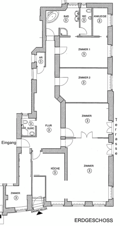
Die repräsentative 4-Zimmer-Altbauwohnung befindet sich im Erdgeschoss eines historischen Mehrfamilienhauses und verfügt über einen eigenen Gartenanteil mit sonniger Terrasse. Die Wohnung zeichnet sich durch hohe Decken und großflächige Fensterfronten aus, die eine einladende, helle Atmosphäre schaffen. Der offene Wohnbereich ist großzügig gestaltet und entspricht moderner Raumaufteilung durch den direkten Übergang zur Küche. Zwei geräumige Schlafzimmer bieten sich ideal für Familien oder jene an, die einen Arbeitsbereich benötigen, wobei ein Schlafzimmer einen begehbaren Kleiderschrank beinhaltet. Vom Wohnzimmer führt eine große Tür zum Gartenbereich. Das großzügige Badezimmer ist modern ausgestattet mit einer Badewanne und Dusche, während ein weiteres Duschbad sowie ein Gäste-WC zur Verfügung stehen. Die Terrasse bietet den perfekten Rahmen für gesellige Grillabende oder ruhige Stunden in einer entspannten Atmosphäre. Insgesamt bietet diese Immobilie ein unvergleichliches Maß an Komfort, Ruhe und Erholung und ist ideal für anspruchsvolle Personen, die höchste Ansprüche an Wohnqualität und Lebensstil stellen.

Sonstiges

  • Das Team von Black Label Immobilien bietet Ihnen Unterstützung in allen Bereichen rund um den Kauf einer Immobilie. Unser internationales Team spricht fließend Englisch, Deutsch, Französisch und Mandarin, zudem arbeiten wir mit einem Team aus mehrsprachigen Anwälten, Notaren und Finanzierungsberatern zusammen. Um Ihren persönlichen Ansprüchen gerecht werden zu können, bieten wir Ihnen eine große Auswahl an verschiedenen Immobilien. Senden Sie uns einfach ihre Suchkriterien inklusive:
  • Art der gesuchten Immobilie
  • Ihr Budget
  • Bevorzugter Standort
  • Suchen Sie eine Immobilie als Investment oder zum Eigenbedarf? Für Unterstützung bei der Finanzierung Ihrer Immobilie vermitteln wir Ihnen gern einen Finanzierungspartner. Sind Sie an einer Vermietung Ihrer neuen Immobilie interessiert? Hierfür bietet Black Label ein Verwaltungs-Paket sowohl für unmöblierte als auch möblierte Vermietungen, sowie einen kompletten Design- und Möblierungsservice, angepasst an ihre persönlichen Vorstellungen. Kontaktieren Sie uns, oder besuchen Sie uns in unserem Büro, um mehr Informationen zu erhalten. Alle Angaben stammen vom Verkäufer. Die Firma BLP Investments GmbH übernimmt daher keine Haftung für die Richtigkeit der Angaben. Insbesondere die Angaben zur Wohnfläche, zur Nutzfläche und zur Aufteilung der Wohn-/Nutzfläche sind von uns nicht durch ein eigenes Aufmaß oder eine eigene Wohnflächenberechnung kontrolliert worden. Die Angaben zum Baujahr sind nicht durch eine Einsicht in die Bauakte überprüft worden.

Lage

Die Wohnung befindet sich in einer sehr gefragten Wohngegend des beliebten Bezirks Berlin-Westend. Die Umgebung ist von eleganten Altbauten und Villen, grünen Straßen und ruhigen Plätzen geprägt und bietet eine gehobene Wohnqualität. In unmittelbarer Nähe befinden sich zahlreiche Einkaufsmöglichkeiten, tolle Restaurants und Cafés, die den Bedürfnissen der Bewohner gerecht werden. Der Kurfürstendamm ist in 10 Minuten erreichbar und bietet eine breite Palette an Mode-, Kunst- und Kulturangeboten. Die sehr verkehrsgünstige Lage ermöglicht eine schnelle Verbindung zu allen Teilen der Stadt. Eine nahegelegene U-Bahnstation sowie mehrere Buslinien sorgen auch für eine ausgezeichnete Anbindung an den öffentlichen Verkehr. Insgesamt ist die Lage ideal für alle, die eine ruhige, aber dennoch zentrale Wohngegend suchen. Die ausgezeichnete Wohnqualität und die sehr gute Anbindung an den öffentlichen Verkehr machen diesen Ort zu einem der begehrtesten Wohnorte in Berlin.
Leistikowstraße 6, 14050 Berlin

Kontaktieren Sie uns (Kopie)

Bitte rechnen Sie 1 plus 2.

Ihre Daten werden nur zur Beantwortung Ihrer Anfrage genutzt. Wir geben Ihre Daten nicht weiter. Mehr Informationen zum Umgang mit Nutzer-Daten finden Sie in unserer Datenschutzerklärung.