Schaffen Sie sich Ihren individuellen Wohn(T)raum auf 400m2 Gesamtfläche und 720m2 Grundstück

Objektbeschreibung

  • In ruhiger Lage von Berlin befindet sich dieses großzügige Einfamilienhaus, welches sich auf einem 720 m² großen Grundstück mit schönem Garten befindet. Massive Bauweise : Baujahr 1968 Erweiterung von 1990 bis 1996 Alle Bauunterlagen sind vorhanden Das Haus erstreckt sich über 3 Geschosse (K+I+D),
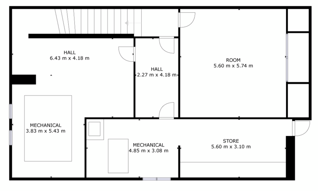
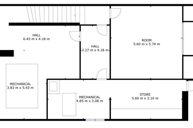
  • Keller mit Hobbyraum, Werkstatt und HWR
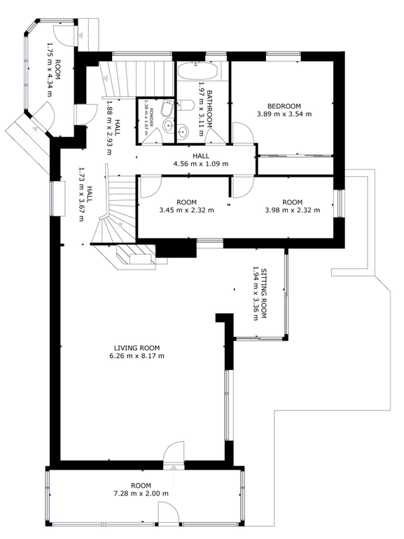
  • EG mit Küche, großem Wohn- und Essbereich, 1 Schlafzimmer, 1 Bad und ein Gäste WC
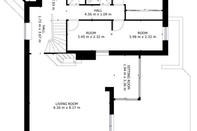
  • Dachgeschoß mit aktuell 5 Zimmern und ein großes Bad. Durch das Mansarddach besteht eine großzügige Raumhöhe und wenig Platzverlust. ECKDATEN: Gesamtfläche ca. 420m2 Wohnfläche von ca. 262 m² 6,5 Zimmer 2 Bäder 1 Gäste-WC Kamin 3 Wintergärten Hobbyraum, Werkstatt, HWR Gartenhäusschen Ideale Voraussetzung umgebaut zu werden zum
  • Mehrgenerationenhaus oder
  • Einfamilienhaus mit Einliegerwohnung
  • Große Doppel-Garage Idyllischer Garten mit einer Fläche von ca. 600 m² Eine perfekte Immobilie für die individuelle Gestaltung. ZUSATZSERVICE Eine professionelle Energieberatung (iSFP) wurde bereits kostenpflichtig beauftragt und umfasst eine Planung und Kostenaufstellung, um das Haus zukunftssicher energieeffizient zu modernisieren. Im gleichen Zuge wurde der Energieausweis erstellt. Eine Angebot für die Sanierung wurde vorsorglich für Sie eingeholt und eine Bauzeit von ca. 6 Monaten bestätigt.

Ausstattung

Aktueller Grundriss: UG größtenteils unterkellert: HWA, Hobbyraum, Werkstatt EG 2 Zimmer, Küche, Bad, Gäste WC, Wohn-und Esszimmer, 2 Wintergärten, Windfang, Eingangsflur 1.OG wenig Platzverlust durch Walmdach, 4 Zimmer, Bad, WC, Flur, Wintergarten Doppelgarage Gartenhäuschen Massive Bauweise, Fassade vollverklinkert

Sonstiges

HAFTUNG Wir weisen darauf hin, dass die von uns weitergegebenen Objektinformationen, Unterlagen, Grundrisse, Vermarktungspläne oder Ähnliches vom Eigentümer, bzw. Vermieter zur Verfügung gestellt wurden. Eine Haftung für die Richtigkeit oder Vollständigkeit der Angaben übernehmen wir daher nicht. Es obliegt daher unseren Kunden, die darin enthaltenen Objektinformationen und Angaben auf ihre Richtigkeit hin zu überprüfen. Alle Immobilienangebote sind freibleibend und vorbehaltlich Irrtümer, Zwischenverkauf- und Vermietung oder sonstige Zwischenverwertung. GELDWÄSCHEGESETZ Als Immobilienmaklerunternehmen sind wir nach § 1, 2 Abs. 1 Nr. 10, 4 Abs. 3 Geldwäschegesetz (GwG) dazu verpflichtet, vor Begründung einer Geschäftsbeziehung die Identität des Vertragspartners festzustellen und zu überprüfen. Hierzu ist es erforderlich, dass wir die relevanten Daten Ihres Ausweisdokumentes (Pass oder Personalausweis) festhalten. Das Geldwäschegesetz (GwG) sieht vor, dass der Makler die Kopien, bzw. Unterlagen fünf Jahre aufbewahren muss.

Lage

Die Haus befindet sich in zweiter Reihe einer ruhigen Anliegerstraße im Herzen von Wittenau. In unmittelbarer Nähe befinden sich zahlreiche Einkaufsmöglichkeiten, Restaurants, Cafés und Bars. Der U-Bahnhof Rathaus Reinickendorf (U8) und Holzhauser Straße (U6) befinden sich in unmittelbarer nähe und sind mit dem Bus in wenigen Minuten zu erreichen. Die nächste Autobahnauffahrt (A100) ist in ca. 5 Fahrminuten zu erreichen. Der Hauptbahnhof ist in ca. 20 Fahrminuten und der BER in ca. 45 Fahrminuten erreichbar.
Am Kesselpfuhl 49, 13437 Berlin

Kontaktieren Sie uns (Kopie)

Bitte addieren Sie 1 und 1.

Ihre Daten werden nur zur Beantwortung Ihrer Anfrage genutzt. Wir geben Ihre Daten nicht weiter. Mehr Informationen zum Umgang mit Nutzer-Daten finden Sie in unserer Datenschutzerklärung.