Einfamilienhaus - Landhausvilla mit Entwicklungspotenzial in ruhiger Seitenstraße in Wittenau

Objektbeschreibung

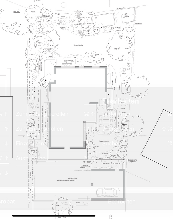
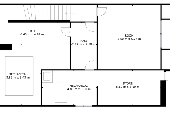
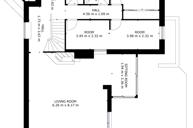
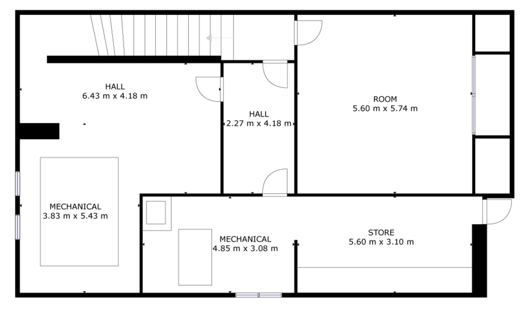
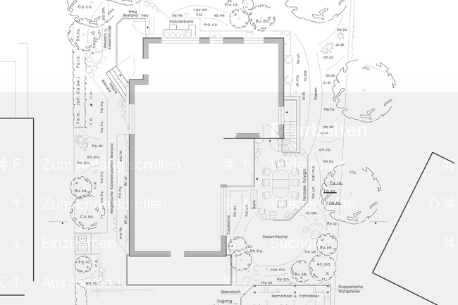
In ruhiger Lage von Berlin befindet sich dieses großzügige Einfamilienhaus, welches sich auf einem 720 m² großen Grundstück mit schönem Garten befindet. Das Haus erstreckt sich über 3 Ebenen (darunter ein Kellergeschoss inkl. Hobbyraum/Gästezimmer), EG mit Küche, großem Wohn- und Essbereich, 2 Zimmer, 1 Bad und ein Gäste WC) und Dachgeschoß) und bietet insgesamt 6 Zimmer, darunter 4 Schlafzimmer und 2 Bäder und 1 Gäste WC. Mit einer Gesamtwohnfläche von 262 m² bietet das Haus ausreichend Platz für eine Familie und bietet sich im Schnitt optimal als Mehrgenerationenhaus. Das Haus wurde 1968 erbaut und ist im aktuellen Zustand nach Vermietung stark renovierungsbedürftig. Die Ausstattung ist als gehoben zu bezeichnen und der Bodenbelag besteht aus Fliesen und Parkett. Eine große Doppel-Garage mit elektrisch-betriebenen Toren (aktuell defekt) sowie ein geräumiger Keller mit Hobbyraum und 1 weiterer Abstellraum bieten zusätzlichen Stauraum. Der bisher als Küche genutzte Raum könnte zu einem weiterem Schlafzimmer im EG umgestaltet werden und für einen zeitgemäß modernen Einsatz findet die neue Wohnküche einen optimalen Platz im großzügig geschnittenen Wohn- und Esszimmer. Für besondere Gemütlichkeit und wohlige Wärme sorgt der Kamin im Wohnzimmer. Ein großer Wintergarten lädt zum Entspannen und Verweilen ein. Für die Beheizung des Hauses sorgt eine funktionierende Öl-Heizung, der Öl-Tank befindet sich im Keller. Der idyllische Garten mit einer Fläche von ca. 600 m² bietet viel Platz zum Spielen und Entspannen. Zusatzservice Eine professionelle Energieberatung wurde bereits kostenpflichtig beauftragt und umfasst eine Planung und Kostenaufstellung, um das Haus zukunftssicher energieeffizient zu modernisieren. Im gleichen Zuge wird der Energieausweis erstellt.

Ausstattung

größtenteils unterkellert: HWA, Hobbyraum EG 1 Zimmer, Küche, Bad, Gäste WC, Wohn-und Esszimmer, 2 Wintergärten, Windfang, Eingangsflur 1.OG wenig Platzverlust durch Walmdach, 4 Zimmer, Bad, Flur, Wintergarten Doppelgarage Gartenhäusschen Massive Bauweise, Fassade voll verklinkert

Sonstiges

HAFTUNG Wir weisen darauf hin, dass die von uns weitergegebenen Objektinformationen, Unterlagen, Grundrisse, Vermarktungspläne oder Ähnliches vom Eigentümer, bzw. Vermieter zur Verfügung gestellt wurden. Eine Haftung für die Richtigkeit oder Vollständigkeit der Angaben übernehmen wir daher nicht. Es obliegt daher unseren Kunden, die darin enthaltenen Objektinformationen und Angaben auf ihre Richtigkeit hin zu überprüfen. Alle Immobilienangebote sind freibleibend und vorbehaltlich Irrtümer, Zwischenverkauf- und Vermietung oder sonstige Zwischenverwertung. GELDWÄSCHEGESETZ Als Immobilienmaklerunternehmen sind wir nach § 1, 2 Abs. 1 Nr. 10, 4 Abs. 3 Geldwäschegesetz (GwG) dazu verpflichtet, vor Begründung einer Geschäftsbeziehung die Identität des Vertragspartners festzustellen und zu überprüfen. Hierzu ist es erforderlich, dass wir die relevanten Daten Ihres Ausweisdokumentes (Pass oder Personalausweis) festhalten. Das Geldwäschegesetz (GwG) sieht vor, dass der Makler die Kopien, bzw. Unterlagen fünf Jahre aufbewahren muss.

Lage

Die Haus befindet sich in zweiter Reihe einer ruhigen Anliegerstraße im Herzen von Wittenau. In unmittelbarer Nähe befinden sich zahlreiche Einkaufsmöglichkeiten, Restaurants, Cafés und Bars. Der U-Bahnhof Rathaus Reinickendorf (U8) und Holzhauser Straße (U6) befinden sich in unmittelbarer nähe und sind mit dem Bus in wenigen Minuten zu erreichen. Die nächste Autobahnauffahrt (A100) ist in ca. 5 Fahrminuten zu erreichen. Der Hauptbahnhof ist in ca. 20 Fahrminuten und der Flughafen Berlin-Tegel in ca. 45 Fahrminuten erreichbar.
Am Kesselpfuhl 49, 13437 Berlin

Kontaktieren Sie uns (Kopie)

Bitte addieren Sie 8 und 6.

Ihre Daten werden nur zur Beantwortung Ihrer Anfrage genutzt. Wir geben Ihre Daten nicht weiter. Mehr Informationen zum Umgang mit Nutzer-Daten finden Sie in unserer Datenschutzerklärung.