Zweizimmerwohnung im Gartenhaus an der Kantstraße und Nah am Sauvignyplatz

Objektbeschreibung

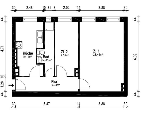
Diese charmante Eigentumswohnung befindet sich im 4. Obergeschoss (Innenhof, Seitenflügel) eines gepflegten Altbaus. Sie ist zum Innenhof hin ausgerichtet. Durch überschaubare Renovierungsarbeiten erstrahlt sie schnell wieder in neuem Glanz. Der attraktive Grundriss ist ideal für Paare oder Singles. Die hohen Decken und der Dielenboden lassen die Räume großzügig wirken und unterstreichen den begehrten Altbaucharakter. Die Wohnung verfügt über ein geräumiges Wohnzimmer, ein Schlafzimmer, eine Küche mit integrierter Einbauküche und ein helles Bad mit Dusche. Das monatliche Hausgeld beträgt 249,17 € und beinhaltet unter anderem die Kosten für die Instandhaltung des Gebäudes und die Hausverwaltung. In der Umgebung befinden sich diverse Einkaufsmöglichkeiten, Restaurants und öffentliche Verkehrsmittel. Die Anbindung an das öffentliche Verkehrsnetz ist durch die Nähe zum Bahnhof und verschiedenen Buslinien sehr gut. Insgesamt bietet diese Wohnung ein schönes Zuhause in einer lebendigen Stadt wie Berlin und ist sowohl für Eigennutzer als auch Kapitalanleger eine interessante Investition.

Ausstattung

2 Zimmer Einbauküche Duschbad mit Fenster Dielenboden Isolierverglasung

Sonstiges

  • Das Team von Black Label Immobilien bietet Ihnen Unterstützung in allen Bereichen rund um den Kauf einer Immobilie. Unser internationales Team spricht fließend Englisch, Deutsch, Französisch und Mandarin, zudem arbeiten wir mit einem Team aus mehrsprachigen Anwälten, Notaren und Finanzierungsberatern zusammen. Um Ihren persönlichen Ansprüchen gerecht werden zu können, bieten wir Ihnen eine große Auswahl an verschiedenen Immobilien. Senden Sie uns einfach ihre Suchkriterien inklusive:
  • Art der gesuchten Immobilie
  • Ihr Budget
  • Bevorzugter Standort
  • Suchen Sie eine Immobilie als Investment oder zum Eigenbedarf? Für Unterstützung bei der Finanzierung Ihrer Immobilie vermitteln wir Ihnen gern einen Finanzierungspartner. Sind Sie an einer Vermietung Ihrer neuen Immobilie interessiert? Hierfür bietet Black Label ein Verwaltungs-Paket sowohl für unmöblierte als auch möblierte Vermietungen, sowie einen kompletten Design- und Möblierungsservice, angepasst an ihre persönlichen Vorstellungen. Kontaktieren Sie uns, oder besuchen Sie uns in unserem Büro, um mehr Informationen zu erhalten. Alle Angaben stammen vom Verkäufer. Die Firma BLP Investments GmbH übernimmt daher keine Haftung für die Richtigkeit der Angaben. Insbesondere die Angaben zur Wohnfläche, zur Nutzfläche und zur Aufteilung der Wohn-/Nutzfläche sind von uns nicht durch ein eigenes Aufmaß oder eine eigene Wohnflächenberechnung kontrolliert worden. Die Angaben zum Baujahr sind nicht durch eine Einsicht in die Bauakte überprüft worden.

Lage

Die Bleibtreustraße befindet sich im Bezirk Charlottenburg-Wilmersdorf in Berlin. Die Gegend zeichnet sich durch eine Mischung aus historischem Charme und modernem Flair aus, die Bleibtreustraße selbst ist bekannt für ihre eleganten Altbauhäuser und exklusiven Geschäfte. Die Lage in Charlottenburg-Wilmersdorf bietet eine gehobene Wohn- und Geschäftsatmosphäre. In der Umgebung finden sich zahlreiche Boutiquen, Cafés, Restaurants und Kunstgalerien. Die Bleibtreustraße liegt in direkter Nähe des Kurfürstendamms, einer der bekanntesten Einkaufsstraßen Berlins, die für ihre luxuriösen Geschäfte, Hotels und Theater berühmt ist. Die Architektur in dieser Gegend ist geprägt von eleganten Gründerzeitbauten, die der Umgebung ein besonderes Flair verleihen. Grünflächen wie der Lietzenseepark bieten Erholungsmöglichkeiten und laden zu Spaziergängen ein.
Bleibtreustraße 4, 10623 Berlin

Kontaktieren Sie uns (Kopie)

Bitte rechnen Sie 1 plus 5.

Ihre Daten werden nur zur Beantwortung Ihrer Anfrage genutzt. Wir geben Ihre Daten nicht weiter. Mehr Informationen zum Umgang mit Nutzer-Daten finden Sie in unserer Datenschutzerklärung.