Spektakuläres Penthouse über 3 Ebenen & Panoramablick über Berlin

Objektbeschreibung

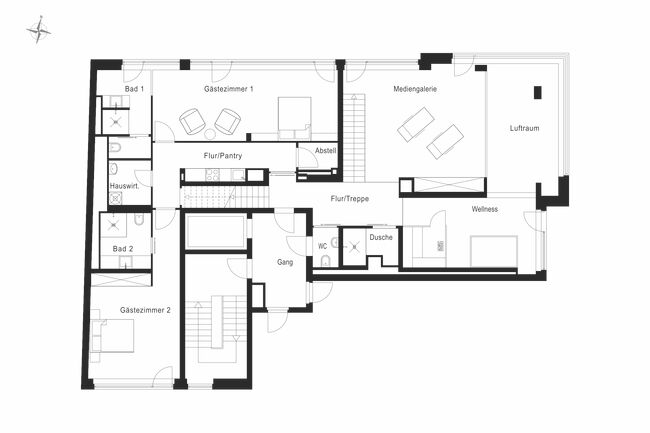
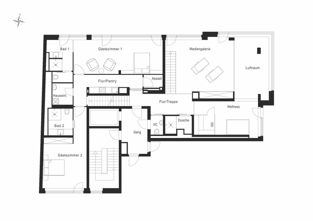
Entdecken Sie ein Zuhause, das Ihre Sinne belebt und Sie täglich aufs Neue inspiriert! Diese atemberaubende Wohnung erstreckt sich über vier weitläufige Ebenen und bietet Ihnen eine unvergleichliche Wohnfläche von ca. 341,8 m² im pulsierenden Herzen Berlins. Eingebettet zwischen den dynamischen Vierteln Mitte und Prenzlauer Berg erwartet Sie hier ein einzigartiger Mix aus urbanem Flair und entspannender Idylle. Betreten Sie eine Welt voller Licht und Raum: Riesige Fensterfronten fluten die Räume mit Tageslicht und geben den Blick frei auf das üppige Grün der umliegenden Parks. Die offenen, großzügig gestalteten Wohnbereiche sind ein Paradies für Designliebhaber, ausgestattet mit stilvollen, gegossenen Böden und hochwertigen Dielen. Die exklusive Boffi-Küche lädt zu kulinarischen Experimenten ein, während die luxuriösen Bäder von Flagstone Sie in eine Welt des Wohlbefindens entführen. Ein absolutes Highlight ist die private Wellness-Oase: Genießen Sie erholsame Stunden in der Dampfsauna oder lassen Sie im Whirlpool auf der Dachterrasse den Alltagsstress hinter sich. Mit einem unvergleichlichen 360-Grad-Panoramablick über die Stadt wird jede Minute auf dieser Terrasse zu einem unvergesslichen Erlebnis. Auch Technikfans kommen auf ihre Kosten: Eine moderne Klimaanlage, erstklassige Alu-Isolierverglasung und ein SONOS-Soundsystem sorgen für Komfort und Unterhaltung auf höchstem Niveau. Erleben Sie die pulsierende Atmosphäre der Umgebung mit ihren charmanten Cafés, erstklassigen Restaurants und stilvollen Boutiquen. Direkt vor Ihrer Haustür erwarten Sie historische Sehenswürdigkeiten und der lebendige Mauerpark – ein perfekter Ort für entspannte Spaziergänge und lebhafte Wochenendmärkte. Diese Wohnung ist mehr als nur ein Zuhause – sie ist ein Lebensgefühl, ein Ort der Inspiration und des Genusses. Hier erleben Sie Luxus und Lebensqualität in einer neuen Dimension. Tauchen Sie ein in dieses außergewöhnliche Wohnjuwel und lassen Sie sich verzaubern!

Ausstattung

  • offene Lebensbereiche auf 4 Ebenen mit riesigen Fensterfronten
  • stylisch gegossene Böden, sowie hochwertige Dielen
  • Küche von Boffi
  • Bäder von Flagstone
  • Sauna
  • Aufdachterrasse mit 360 Grad-Blick
  • Whirlpool auf Terrasse sowie im Wellnessbereich 6. OG
  • Dampfsauna
  • Wäscheschacht (zw. 6.+7.OG)
  • Klimaanlage
  • Kaminzug vorhanden
  • Alu-Isolierverglasung mit erhöhtem Schallschutz
  • z.T. Sichtbetonwände

Sonstiges

  • Das Team von Black Label Immobilien bietet Ihnen Unterstützung in allen Bereichen rund um den Kauf einer Immobilie. Unser internationales Team spricht fließend Englisch, Deutsch, Französisch und Mandarin, zudem arbeiten wir mit einem Team aus mehrsprachigen Anwälten, Notaren und Finanzierungsberatern zusammen. Um Ihren persönlichen Ansprüchen gerecht werden zu können, bieten wir Ihnen eine große Auswahl an verschiedenen Immobilien. Senden Sie uns einfach ihre Suchkriterien inklusive:
  • Art der gesuchten Immobilie
  • Ihr Budget
  • Bevorzugter Standort
  • Suchen Sie eine Immobilie als Investment oder zum Eigenbedarf? Für Unterstützung bei der Finanzierung Ihrer Immobilie vermitteln wir Ihnen gern einen Finanzierungspartner. Sind Sie an einer Vermietung Ihrer neuen Immobilie interessiert? Hierfür bietet Black Label ein Verwaltungs-Paket sowohl für unmöblierte als auch möblierte Vermietungen, sowie einen kompletten Design- und Möblierungsservice, angepasst an ihre persönlichen Vorstellungen. Kontaktieren Sie uns, oder besuchen Sie uns in unserem Büro, um mehr Informationen zu erhalten. Alle Angaben stammen vom Verkäufer. Die Firma BLP Investments GmbH übernimmt daher keine Haftung für die Richtigkeit der Angaben. Insbesondere die Angaben zur Wohnfläche, zur Nutzfläche und zur Aufteilung der Wohn-/Nutzfläche sind von uns nicht durch ein eigenes Aufmaß oder eine eigene Wohnflächenberechnung kontrolliert worden. Die Angaben zum Baujahr sind nicht durch eine Einsicht in die Bauakte überprüft worden.

Lage

Bezirk und Kiez: Die Bernauer Straße liegt im Bezirk Mitte und grenzt an den lebendigen Prenzlauer Berg. Diese Gegend ist bekannt für ihre historische Bedeutung, da hier einst der Berliner Mauerstreifen verlief. Der angrenzende Mauerpark ist ein beliebter Treffpunkt für Einheimische und Touristen und bietet kulturelle Veranstaltungen sowie einen berühmten Flohmarkt. Das quirlige Kiezleben in der benachbarten Oderberger Straße, der Kastanienallee und rund um den Arkonaplatz liegt Ihnen direkt zu Füßen. Öffentliche Verkehrsmittel: Die Umgebung ist hervorragend an das öffentliche Verkehrsnetz angebunden. Die U-Bahn-Station Bernauer Straße (U8) und die Tramlinie M10 befinden sich in unmittelbarer Nähe. Auch der S-Bahnhof Nordbahnhof ist leicht erreichbar, was schnelle Verbindungen in alle Teile der Stadt ermöglicht. Außerdem ist diese Lage ein Hotspot für urbane Mobilität, mit Angeboten wie Uber und verschiedenen Verleihanbietern wie Share Now, WeShare und Tier. Anbindung: Die Bernauer Straße bietet eine gute Anbindung an das städtische Straßennetz. Über die nahegelegene Brunnenstraße und Torstraße gelangt man zügig in andere Stadtteile. Die zentrale Lage ermöglicht zudem einen schnellen Zugang zum Hauptbahnhof und zum Flughafen. Schulen und Kitas: Die Infrastruktur im Umfeld ist hervorragend, mit zahlreichen Schulen und Kindertagesstätten, die eine gute Betreuung und Bildung für Familien mit Kindern gewährleisten. Universitäten: Die Humboldt-Universität zu Berlin ist schnell erreichbar, was diese Lage besonders attraktiv für Studierende macht. Lebensmittelläden und Einkaufsmöglichkeiten: In der Umgebung befinden sich zahlreiche Supermärkte, Bioläden und kleine Geschäfte, die alles für den täglichen Bedarf bieten. Ob ein Flat White bei Bonanza oder ein Gemüse-Smoothie bei der Juicery – alles ist innerhalb von fünf Minuten zu Fuß erreichbar. Alternativ können Einkäufe bequem über Dienste wie Gorillas oder Flink bestellt und geliefert werden. Gastronomie und Freizeit: Die Gegend ist reich an Restaurants, Cafés und Bars, die eine vielfältige kulinarische Auswahl bieten. Der Mauerpark lädt zu entspannten Spaziergängen ein, und das nahegelegene Kulturbrauerei-Gelände bietet weitere Freizeitmöglichkeiten mit Kinos, Clubs und Theatern. Die Bernauer Straße verbindet historische Bedeutung mit modernem Stadtleben. Mit einer ausgezeichneten Verkehrsanbindung und einer Vielzahl an Freizeitmöglichkeiten ist sie besonders attraktiv für junge Paare, Singles und Familien. Die zentrale Lage bietet eine vollständige Infrastruktur, die das Leben in Berlin komfortabel und spannend gestaltet.
Bernauer Straße 50, 10435 Berlin

Kontaktieren Sie uns (Kopie)

Bitte rechnen Sie 1 plus 7.

Ihre Daten werden nur zur Beantwortung Ihrer Anfrage genutzt. Wir geben Ihre Daten nicht weiter. Mehr Informationen zum Umgang mit Nutzer-Daten finden Sie in unserer Datenschutzerklärung.