4-Zi-Etagenwohnung im begehrten Kiez zu verkaufen

Objektbeschreibung

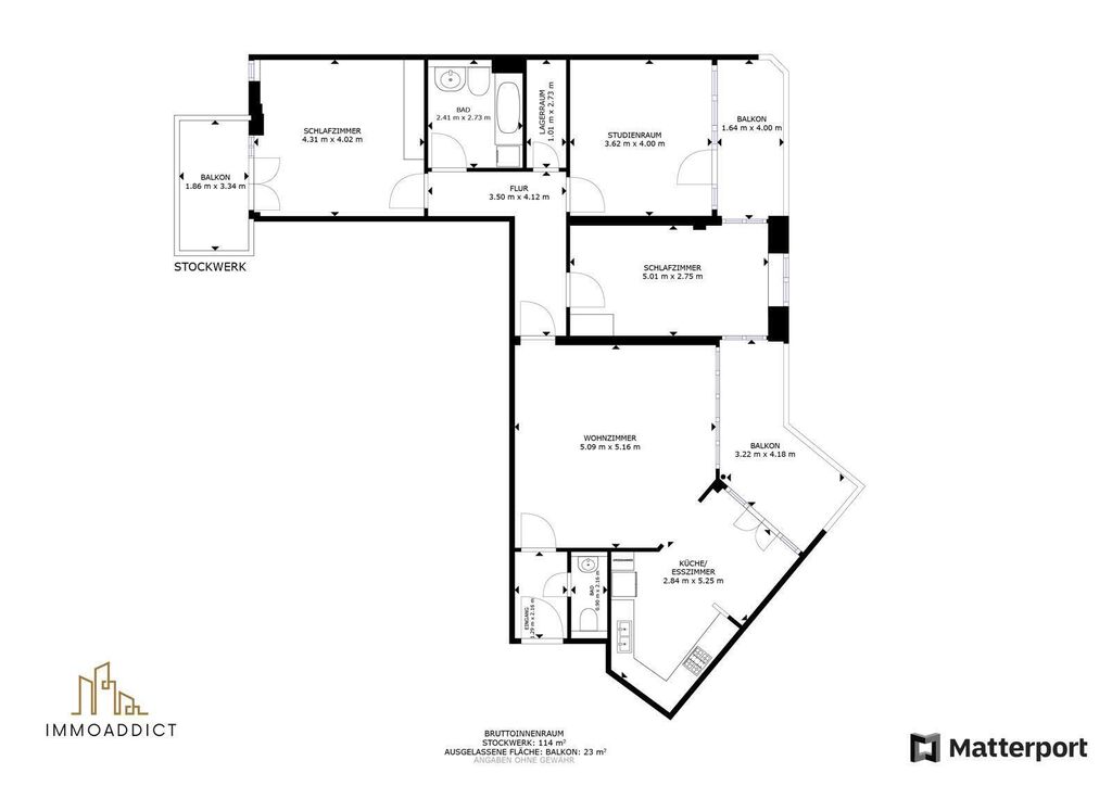
  • Die helle Wohnung mit modernem Grundriss befindet sich im Nord-Ost Flügel des Wohnhauses, im 4. Obergeschoss.
  • Baujahr 1996
  • 4. OG
  • Abstellkammer
  • großes Wohnzimmer
  • offener Küchenbereich
  • Gäste-WC
  • Badezimmer mit Badewanne und WC
  • 3 Schlafzimmer, davon 2 zum begrünten Hinterhof
  • 2 Terrassen
  • 1 Balkon
  • Heizung zentral, Fernwärme
  • barrierefrei (ausser Schwellen zum Balkon)
  • Tiefgaragen-PKW Stellplatz optional

Ausstattung

Bei dieser attraktiven Immobilie handelt es sich um eine großzügig geschnittene 4-Zimmer-Wohnung im schönen Stadtteil Friedrichshain, nahe Boxhagener Platz. Die Wohnung ist mit einem weiss gefliesten Bad mit Wanne ausgestattet und in einem sehr gepflegten Zustand. Die 3 Balkone sind vom Wohnzimmer, Küche und 2 der 3 Schlafzimmer erreichbar. Weiterhin gehören zur Wohnung ein Kellerabteil sowie ein PKW-Stellplatz in der Tiefgarage. Energieverbrauchsausweis BE-2016-000987423

Sonstiges

Zur Bewahrung der Privatsphäre der Mieter stellen wir keine Fotos der Wohnung ein. Besichtigungen können auf Termin vereinbart werden. HAFTUNG Wir weisen darauf hin, dass die von uns weitergegebenen Objektinformationen, Unterlagen, Grundrisse, Vermarktungspläne oder Ähnliches vom Eigentümer, bzw. Vermieter zur Verfügung gestellt wurden. Eine Haftung für die Richtigkeit oder Vollständigkeit der Angaben übernehmen wir daher nicht. Es obliegt daher unseren Kunden, die darin enthaltenen Objektinformationen und Angaben auf ihre Richtigkeit hin zu überprüfen. Alle Immobilienangebote sind freibleibend und vorbehaltlich Irrtümer, Zwischenverkauf- und Vermietung oder sonstige Zwischenverwertung. GELDWÄSCHEGESETZ Als Immobilienmaklerunternehmen sind wir nach § 1, 2 Abs. 1 Nr. 10, 4 Abs. 3 Geldwäschegesetz (GwG) dazu verpflichtet, vor Begründung einer Geschäftsbeziehung die Identität des Vertragspartners festzustellen und zu überprüfen. Hierzu ist es erforderlich, dass wir die relevanten Daten Ihres Ausweisdokumentes (Pass oder Personalausweis) festhalten. Das Geldwäschegesetz (GwG) sieht vor, dass der Makler die Kopien, bzw. Unterlagen fünf Jahre aufbewahren muss.

Lage

Der Berliner Stadtteil Friedrichshain erfreut sich seit Jahren wachsender Beliebtheit. Studenten und Singles sowie junge Familien mit Kindern fühlen sich hier wohl. Dort finden Sie nicht nur Restaurants für jeden Geschmack, sondern auch die beliebtesten Bars und Clubs der Stadt. Aufgrund der Ausrichtung zur Rückseite sind Sie vom Straßenlärm weit entfernt. Die Architektur ist vielfältiger als in jedem anderen Viertel der Stadt.
Boxhagener Straße 102-103, 10245 Berlin

Kontaktieren Sie uns (Kopie)

Bitte rechnen Sie 7 plus 7.

Ihre Daten werden nur zur Beantwortung Ihrer Anfrage genutzt. Wir geben Ihre Daten nicht weiter. Mehr Informationen zum Umgang mit Nutzer-Daten finden Sie in unserer Datenschutzerklärung.